Usansolo ya tiene definido el diseño de la futura Casa Consistorial y adjudidacas las obras para su acondicionamiento en un local, de planta baja y primera planta, de 710 metros cuadrados de superficie ubicado en un edificio de la calle Arlo Baltza. El acceso se realiza desde la calle Pertxin bidea y las dos alturas se comunican mediante una escalera interior e independiente de las viviendas particulares del inmueble.

Tal y como se explica en el proyecto, el último uso de la planta baja fue de almacén y, en general, carece de instalaciones al margen de un cuarto de baño. Sin embargo, la planta primera se encuentra en mejores condiciones puesto que, esporádicamente, fue utilizada como oficina. Por ello, dispone de instalación eléctrica y fontanería, alicatados en aseos y carpintería exterior de aluminio. 

Distribución de espacios

La reforma del local para su transformación en Casa Consistorial va a suponer una importante inversión de 854.532 euros. En la planta baja, de 226 metros cuadrados útiles, se contempla ubicar la zona de acceso con atención al público y la zona de registro en el lado oeste.

Plano del diseño de la planta baja Ayuntamiento Usansolo

En la parte central se habilitará un espacio polivalente de 93 m² para celebrar las sesiones plenarias y diferentes eventos que pueda organizar el propio Ayuntamiento de Usansolo. Finalmente, el lado oeste será utilizado a modo de almacén y dispondrá de un cuarto de instalaciones. 

Los tres grandes espacios en los que se divide la planta baja dispondrán de acceso independiente desde los soportales orientados hacia la plaza Arlo Baltza y se crearán dos rampas para garantizar la accesibilidad a las estancias de acceso público. 

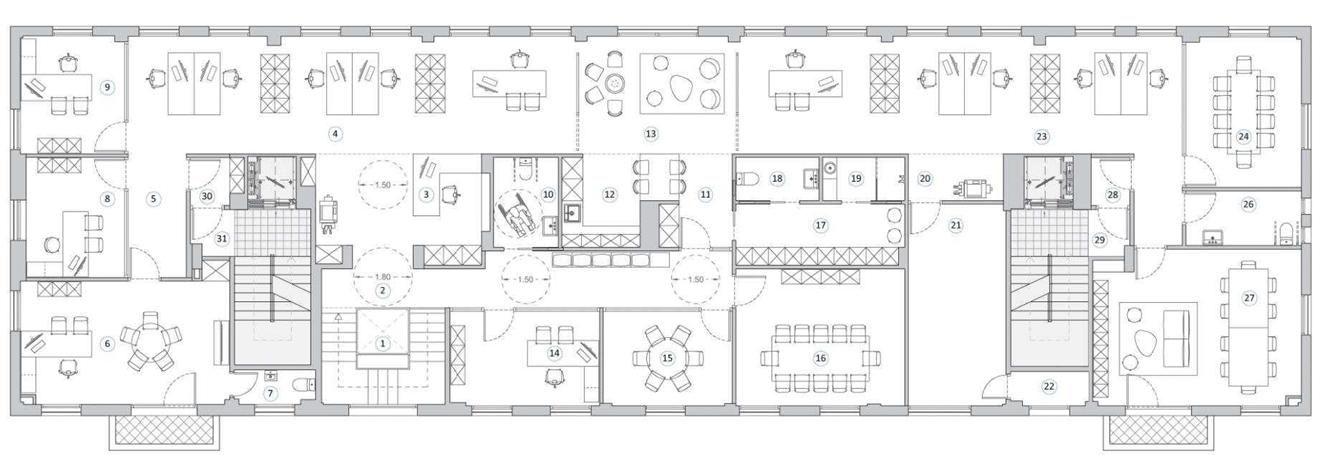
Plano de la primera planta Ayuntamiento de Usansolo

Entre la zona de acceso-registro y la sala polivalente se encuentra el núcleo de comunicaciones principal que conectará ambas plantas. Y el proyecto recoge la instalación de un elevador en el hueco de la escalera para garantizar la accesibilidad a la planta superior. 

En la altura superior del local, de 396 m², se ubicarán las oficinas municipales con despachos privados, estancias para reuniones, zonas de trabajo abiertas y una serie de áreas de espera, aseo y descanso.